00 Elizabeth PikeParkersburg, WV 26101
Due to the health concerns created by Coronavirus we are offering personal 1-1 online video walkthough tours where possible.




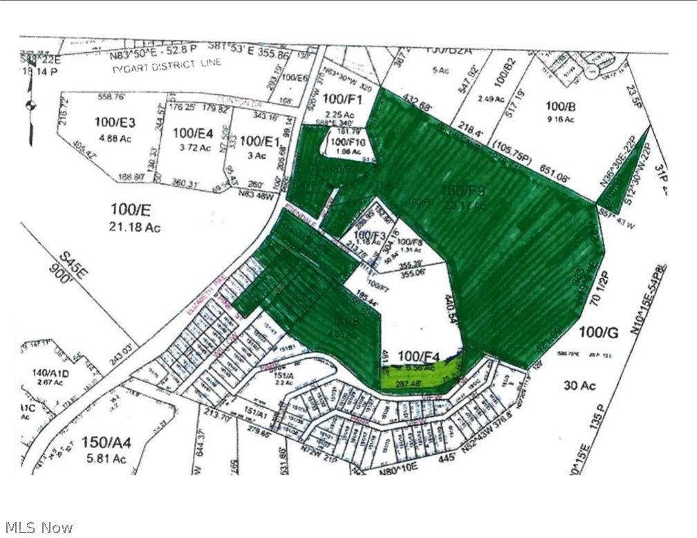
Commercial Property Containing Approx 36 Acres. Aprox 12 acres Flat Land. Some Taxes Are for rental Property which reflects on Taxes. Also on Property There Are Two Houses & Two Mobile Homes. Large Retail Development With All Utilities With-in Half mile Of The South Parkersburg Walmart , Kohls Department Store & Many other Large Retailers.
| yesterday | Listing first seen on site | |
| yesterday | Listing updated with changes from the MLS® |
The data relating to real estate for sale on this website comes in part from the Internet Data Exchange program of MLS NOW. Real estate listings held by brokerage firms other than are marked with the Internet Data Exchange logo and detailed information about them includes the name of the listing broker(s). The photos may be altered, edited, enhanced or virtually staged. Information Deemed Reliable But Not Guaranteed. Copyright 2026 - Multiple Listing Service, Inc. – All Rights Reserved.
Did you know? You can invite friends and family to your search. They can join your search, rate and discuss listings with you.